Wyjątkowy dom - skrajny segment, Wołoska

Dom (Segment skrajny) na wynajem
14 500,00 PLN, Pow. 200 m2
Drukuj ofertę
Drukuj ofertę
Typ nieruchomości:
Dom
Powierzchnia:
200 m2
Typ transakcji:
wynajem
Liczba pokoi:
7
Lokalizacja:
Warszawa Mokotów Wyględów , Wołoska
Rok budowy:
1970
Liczba pięter:
2
Numer oferty:
34964531723
Powierzchnia działki:
260 m2
Cena za m2:
72,50 PLN
Do wynajęcia piękny dom przy ul. Wołoskiej. 

Jest w częściowo umeblowany i wyposażony w sprzęt AGD oraz 3 urządzenia klimatyzujące. Składa się z 3 kondygnacji i poziomu -1.

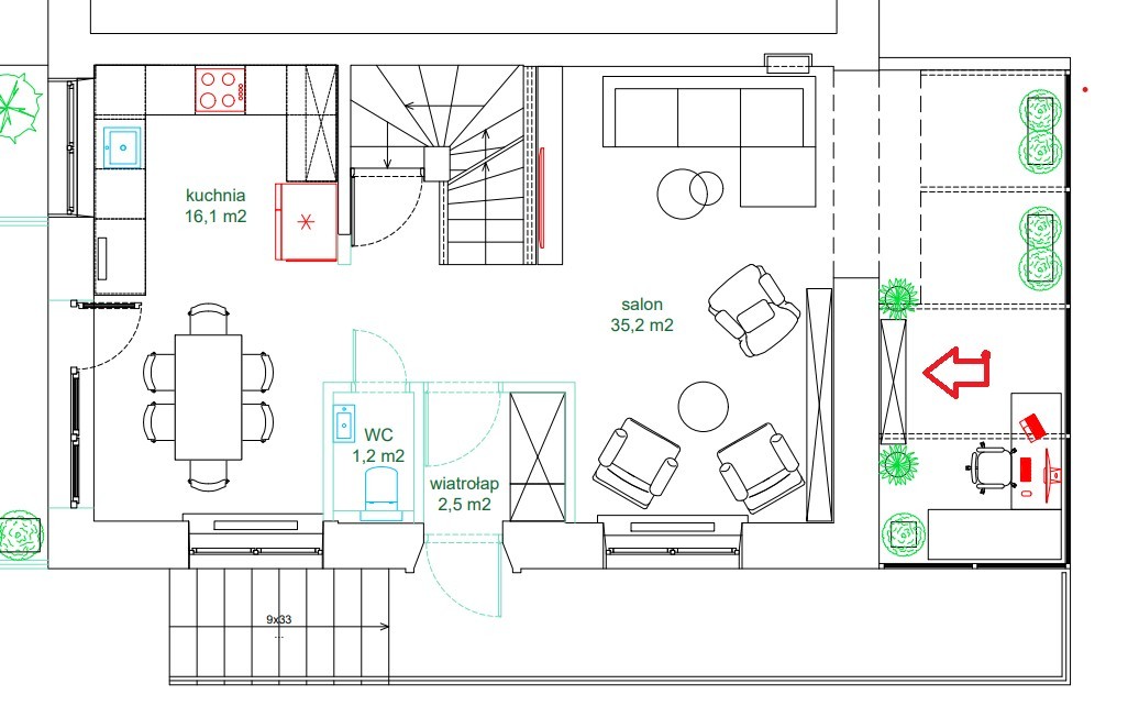
Na kondygnacji 1 mieści się salon, jadania z aneksem kuchennym, toaleta, przedpokój, nowy ogród zimowy oraz taras, z którego możemy wyjść na zadbany ogródek.

Kondygnacja 2 składa się z dwóch sypialni (większej i mniejszej), łazienki z wanną. Duża sypialnia ma dostęp do balkonu.

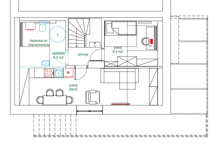
Kondygnacja 3 to 2 niemeblowane pokoje oraz łazienka z kabiną prysznicową.

Poziom -1 to dodatkowy pokój z kanapą, pralnia z suszarnią i toaletą, schowek na sprzęt do ogródka.

Dom ma okna skierowane na wschód, południe, zachód wobec tego jest dobrze nasłoneczniony. Działka o powierzchni 260 m2. Istnieje możliwość zaparkowania dużego samochodu na działce.

Informacje dodatkowe:
- oferta idealna dla rodziny z dziećmi,
- w domu można zamieszkać od 1 grudnia 2025 roku,
- minimalny okres najmu - 12 miesięcy,
- dodatkowo najemca pokrywa opłaty związane z gazem, wodą, prądem, ochroną, Internetem,
- kaucja w wysokości 28.000,00 PLN.

Bardzo dobra lokalizacja.
W pobliżu: C.H. Westfield Mokotów, Pole Mokotowskie, przystanek tramwajowy i autobusowy, "zagłębie biurowe" na Służewcu. Dogodny dojazd do lotniska Chopina.
Nieprawidłowy adres E-mail