NOWE M2-Ogródek 30 m²-Bulwar Praskie-ZOO

Mieszkanie na sprzedaż
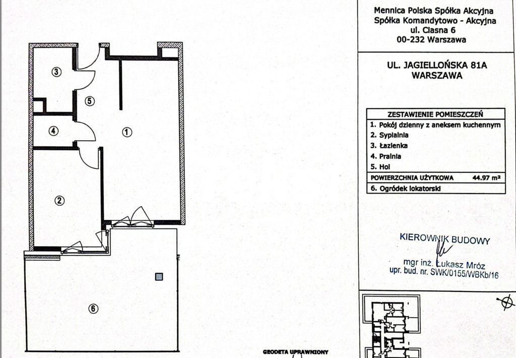
880 000,00 PLN, Pow. 45 m2
Drukuj ofertę
Drukuj ofertę
Typ nieruchomości:
Mieszkanie
Powierzchnia:
45 m2
Typ transakcji:
sprzedaż
Liczba pokoi:
2
Lokalizacja:
Warszawa Praga-Północ Pelcowizna , Jagiellońska
Rok budowy:
2024
Piętro:
0 na 5
Numer oferty:
34964546907
Cena za m2:
19 555,56 PLN
Wykończone, pachnące nowością mieszkanie z ogródkiem - Bulwary Praskie, Jagiellońska 81A
Brak podatku PCC po stronie kupującego.
Na sprzedaż oferuję nowe, w pełni wykończone i umeblowane mieszkanie o powierzchni 45 m², zlokalizowane w prestiżowej inwestycji Bulwary Praskie przy ul. Jagiellońskiej 81A.

To mieszkanie, w którym nikt jeszcze nie mieszkał - pachnie nowością, wykonane zostało w wysokim standardzie i jest gotowe do natychmiastowego wprowadzenia się.

Najważniejsze atuty mieszkania:
  • 30-metrowy, prywatny ogródek - perfekcyjna przestrzeń do odpoczynku, spotkań z bliskimi, porannej kawy czy pracy na świeżym powietrzu.
  • Wysoki standard wykończenia. Starannie dobrane materiały, jasne kolory wnętrz, przemyślany układ.
  • Łazienka - eleganckie, nowoczesne oświetlenie, nowa armatura i ponadczasowy styl.
  • W pełni umeblowane, wszystkie meble i wyposażenie pozostają w cenie.
  • Stan idealny, zero śladów użytkowania.

Miejsce parkingowe:
Do mieszkania przynależy miejsce postojowe w garażu podziemnym - 40 000 zł.
Szeroki wjazd, wygodny układ hali, łatwy dostęp do windy z poziomu garażu.

Stan prawny:
Mieszkanie posiada uregulowany stan prawny - można śmiało posiłkować się kredytem, nie występują żadne obciążenia ani przeszkody formalne.
Inwestycja Bulwary Praskie - nowoczesne, zielone osiedle

Bulwary Praskie to jedna z najciekawszych i najbardziej dopracowanych inwestycji na warszawskiej Pradze.
Osiedle wyróżnia się:
- nowoczesną, elegancką architekturą,
- licznymi nasadzeniami i starannie zaprojektowaną zielenią,
- szerokimi alejkami spacerowymi,
- wewnętrznym patio z placem zabaw,
- wysokim standardem części wspólnych,
- świetną kulturą mieszkańców i spokojną atmosferą.

Całość tworzy kameralne, bezpieczne i przyjazne miejsce do życia – idealne zarówno dla singli, par, jak i osób ceniących prywatność i komfort.

Topowa lokalizacja - idealne połączenie spokoju i miasta
Ulica Jagiellońska 81A to miejsce, które łączy ciszę zielonego osiedla z szybkim dostępem do pełnej infrastruktury miasta:
  • 2 min do przystanków tramwajowych i autobusowych,
  • szybki dojazd do Centrum (ok. 12-15 minut),
  • blisko metro,
  • w sąsiedztwie sklepy, piekarnie, restauracje i punkty usługowe,
  • tereny nad Wisłą - idealne na spacery i sport,
  • blisko Park Praski i ZOO,
  • świetny dostęp do tras wyjazdowych z miasta.
To lokalizacja, która rośnie na wartości, a jednocześnie daje poczucie spokoju i oddechu od miejskiego zgiełku.

Z przyjemnością przedstawię szczegóły i pomogę w przeprowadzeniu transakcji krok po kroku.
Zapraszam do kontaktu!

Starszy doradca ds. Nieruchomości
Vadym Chuchmii
Wiarygodna Sprzedaż Nieruchomości Eteria Consulting

Nieprawidłowy adres E-mail