Przytulna kawalerka po remoncie

Mieszkanie na sprzedaż
425 000,00 PLN, Pow. 28,40 m2
Drukuj ofertę
Drukuj ofertę
Typ nieruchomości:
Mieszkanie
Powierzchnia:
28,40 m2
Typ transakcji:
sprzedaż
Liczba pokoi:
1
Lokalizacja:
Warszawa Targówek Bródno
Rok budowy:
1971
Piętro:
3 na 4
Numer oferty:
34964533035
Cena za m2:
14 964,79 PLN
Przytulna kawalerka po remoncie – Warszawa Bródno, ul. Łojewska
Na sprzedaż jasna i funkcjonalna kawalerka po remoncie, zlokalizowana w spokojnej części Bródna przy ul. Łojewskiej. Mieszkanie idealne dla singla, pary lub jako inwestycja pod wynajem.
Opis mieszkania
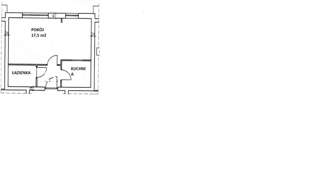
  • Duży, ustawny pokój z dwoma oknami, dzięki czemu wnętrze jest bardzo słoneczne.
    Istnieje możliwość wydzielenia dwóch niezależnych pokoi.
  • Na podłodze znajduje się parkiet (mozaika) w świetnym stanie.
  • Kuchnia w zabudowie, w bardzo dobrym stanie, wyposażona w sprawny sprzęt AGD.
  • Łazienka po remoncie, z kabina prysznicową oraz pralką w bardzo dobrym stanie.
  • Mieszkanie świeżo wyremontowane, gotowe do wprowadzenia bez dodatkowych nakładów.
  • Pełna własność z uregulowanymi gruntami – możliwość zakupu na kredyt (KW).
Lokalizacja Mieszkanie położone w doskonałym punkcie komunikacyjnym oraz z pełną infrastrukturą w najbliższej okolicy.
W pobliżu znajdują się:
  • szkoła podstawowa, przedszkole, żłobek,
  • Park Bródnowski, Las Bródnowski,
  • sklepy, punkty usługowe,
  • szpital.
Komunikacja Świetny dojazd dzięki wielu środkom transportu:
  • metro,
  • autobusy,
  • tramwaje.
Mieszkanie stanowi idealną propozycję zarówno do zamieszkania, jak i inwestycyjną.


Nieprawidłowy adres E-mail